























Introducción
El RSA AVELLA de lujo es un centro sanitario de nueva generación ubicado en el municipio de Avella, en la provincia de Avellino. La RSA representa un importante punto de referencia para la población de Campania, ya que ofrece servicios sanitarios y sociales de alta calidad.
RSA AVELLA nacerá de la necesidad de reforzar la oferta sanitaria y social en la zona de Avellino y Campania, caracterizada por una población de edad avanzada con necesidades asistenciales específicas. La estructura se construirá gracias al compromiso de fondos privados y emprendedores con el objetivo de ofrecer servicios innovadores y de alta calidad.
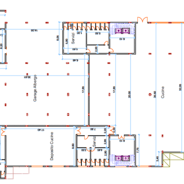
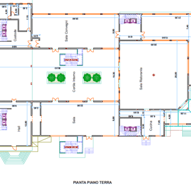
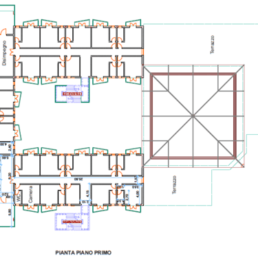
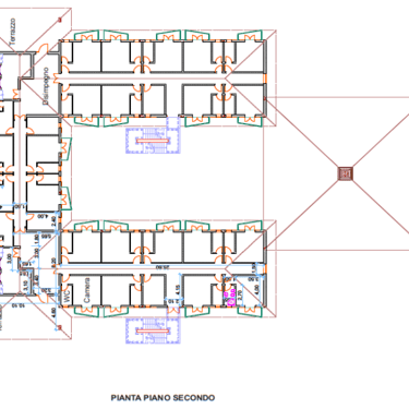
El RSA Avella Lusso tiene:
52 habitaciones, de las cuales 40 individuales
Zonas comunes para relajarse
Piscina, Helipuerto, zona de restauración, Cocina & Lavadero.
Asistencia especializada:
Fisioterapia, Asistencia psicológica, Asistencia medica, Asistencia especializada variada.
Innovaciones y tecnologías
RSA Avella Lusso se destaca por la adopción de tecnologías innovadoras y sustentables, entre ellas:
Sistemas de monitoreo, tecnología de asistencia
Energía sostenible
RSA Avella Lusso representa un importante punto de referencia para la población de Campania, ofreciendo servicios sanitarios de alta calidad. La estructura se destaca por la adopción de tecnologías innovadoras y sostenibles, que contribuyen a mejorar la calidad de vida de los huéspedes y reducir el impacto ambiental.
